
Our studio is the perfect space for any creative project, from photo shoots and video production to commercials, interviews, podcasts, events, workshops, classes, and more. Designed with versatility in mind, our space is equipped to meet the needs of professionals in various fields.
Full access to the studio workspace and kitchen
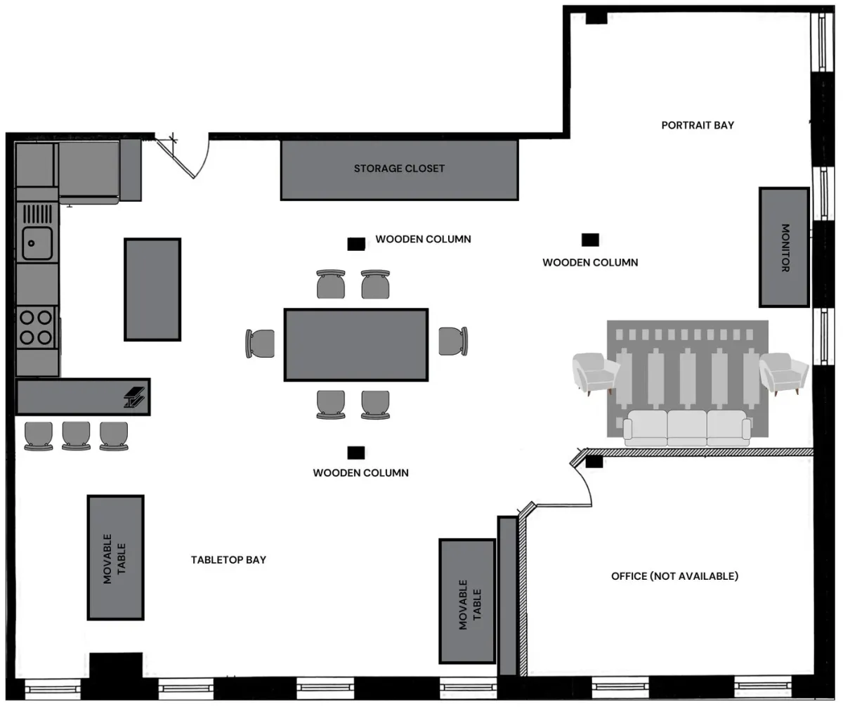
Use our wide variety of props, surfaces, backdrops, and equipment - inquire for details.
Free on-site parking: Includes free street parking and a large on-premises parking lot
Natural light: Enjoy abundant natural lighting in the studio
Convenient elevator access: Located on the 2nd floor.
Studio Manager on-site during your rental to help.
Fast WiFi
Full kitchen access: Electric oven, microwave, refrigerator/freezer drawer (no dishwasher)
Wardrobe rack and makeup desk
A curated collection of props, backdrops, surfaces, cookware, and small appliances
Multi-color seamless rolls
Various countertops and surfaces, including faux marble, light wood, medium wood, dark wood, slate, and solid black
Dining room set and living room set for styled shoots
Photography Equipment - Lights, stands, modifiers,
$600
Need a creative space for a few hours? Book our space for a half-day (4 hours) and get the shots you need without feeling rushed.
$1000
Take your time and capture everything you need with a full-day rental. No stress, no rush—just a full day to create.
CUSTOM
Looking for a dedicated space on a regular basis? Let’s chat and find the right setup that works for you

The Map Building
515 Valley St.
Maplewood, NJ 07040